Преимущества
Представленная модель имеет много преимуществ. В первую очередь это цельнозаливной корпус из нержавейки. Этот материал обеспечивает устойчивость к коррозии, а также гигиеничность и большой срок службы. Толщина стенки корпуса составляет 61 мм. Среди других преимуществ Polair CB107-G:
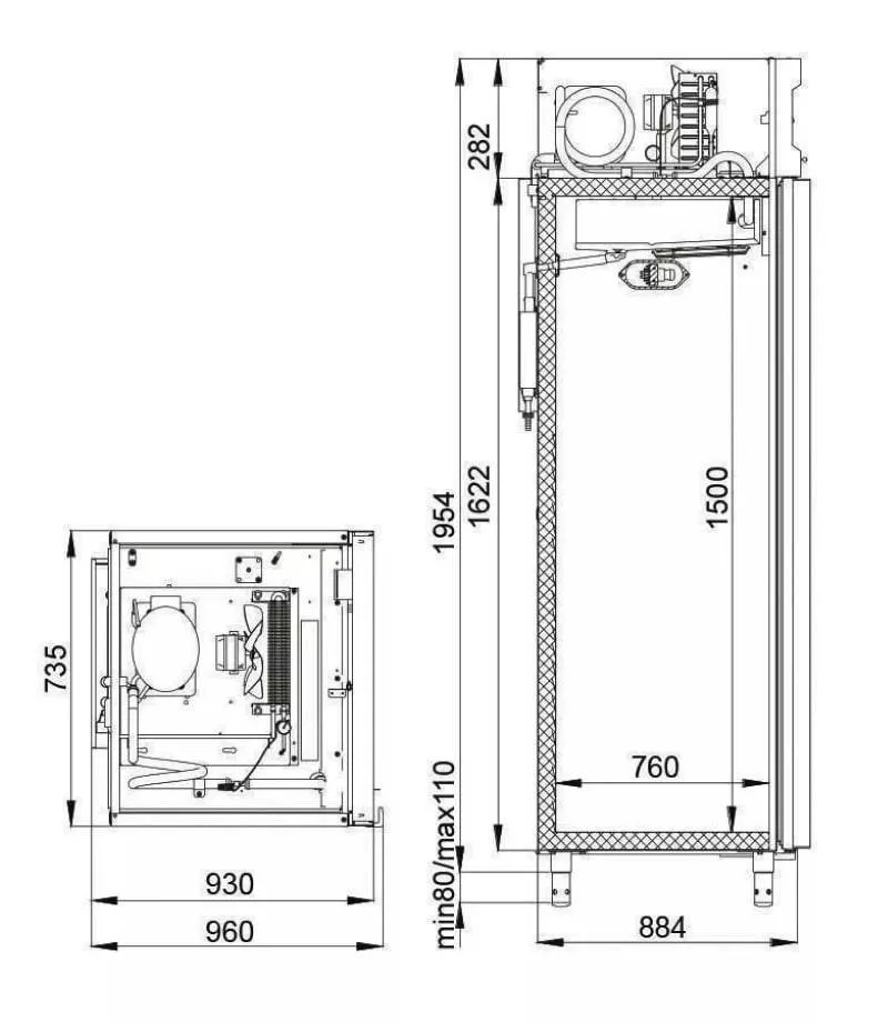
- размещение агрегатов в верхней части;
- динамическая система охлаждения;
- оттайка автоматическая, с удалением конденсата;
- электронные блоки управления с терморегулирующей функцией.
Это оборудование может быть установлено в помещениях с жесткими требованиями, большой температурой и высокой относительной влажностью воздуха. Его грамотное использование гарантирует сохранность продуктов в течение всего срока годности.
Сфера применения
Морозильный шкаф подходит для размещения продуктов на торговых предприятиях и в местах общественного питания. Он эффективно и равномерно охлаждает содержимое, а его настройка не вызывает сложностей. Его можно установить на любых предприятиях, самостоятельно настроив высоту ножек и определить сторону распахивания двери. В качестве дополнительной опции можно приобрести колесные опоры. Монтаж такого оборудования не вызывает сложностей и может быть выполнен самостоятельно, без привлечения специалистов.
Заключение
Морозильный шкаф Polair CB107-G представлен в серии Grande и пользуется большим спросом, что вполне оправдано. Его выбирают для размещения продуктов, разных блюд и др. Он встречается на самых разных производствах, в магазинах, местах торговли, общепитах и многих других местах. Купить его можно в нашей компании. Мы предлагаем оригинальную продукцию бренда, предоставляем гарантию. С нами вы получите качественный функциональный шкаф оперативно, с сопровождающей документацией и дополнительными сведениями от менеджеров. Получить больше информации можно по телефону или, заказав обратный звонок. Заказы доставляются во все регионы России.